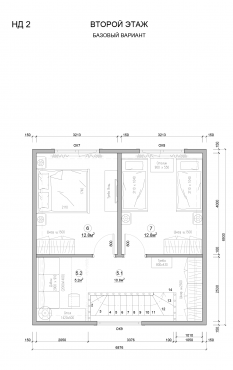
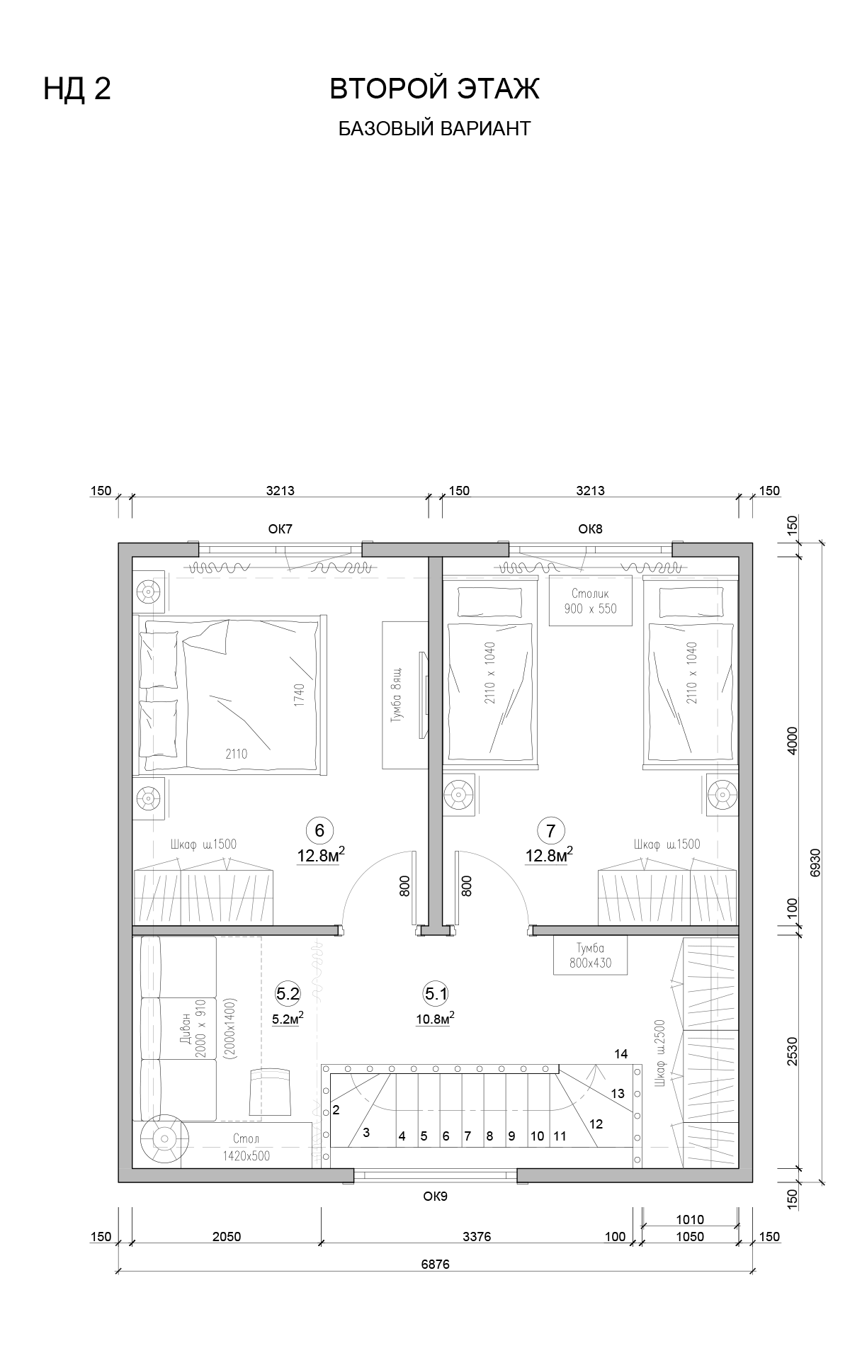
Подбор дома по параметрам

«НД2»

Площадь дома: 116 м2
3 650 000 руб.

Дом под заезд! Вы завозите мебель и живете. Полностью вся отделка до последней розетки!

Дом, построенный из натуральных материалов, подходит как для сезонного, так и для постоянного проживания.

Материал – Поризованный кирпич + брус

Фундамент – теплая плита (теплый пол на весь первый этаж), стены первого этажа – поризованный кирпич с утеплением (отделка 1 этажа: штукатурка с покраской, на полу - плитка), второй этаж – профилированный брус, санузел с установленными сантехприборами.

Полностью готовая электрика, сантехника, отопление, чистовая отделка во всем доме.